Project Name: Sculpting Light
Client: After J International
Location: Seoul, Korea
Size: 120 sq-m (36평)
Status: Complete (2019)
Architect: Suk Lee, Dawon Lee
Project Description:
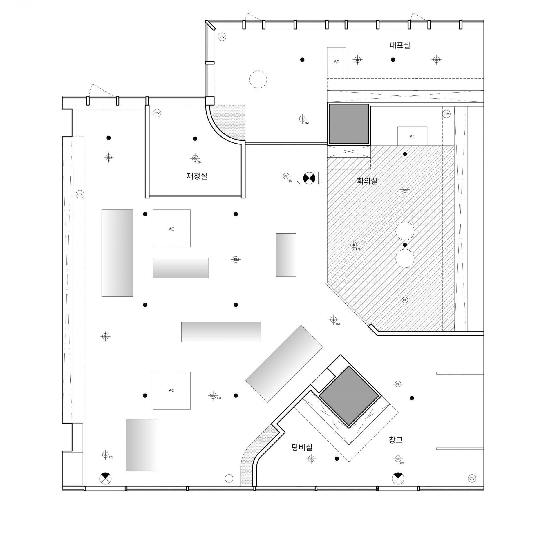
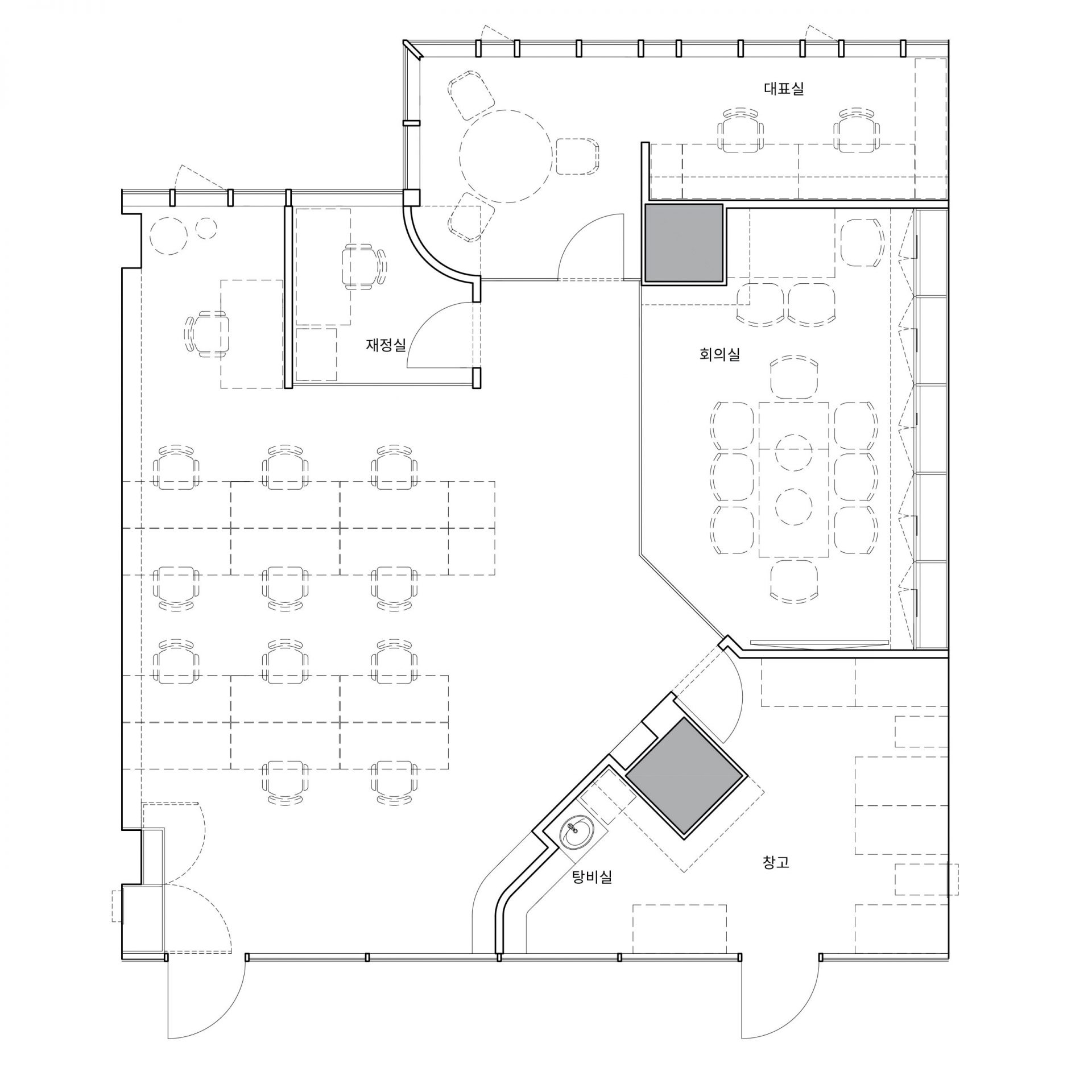
국내 주상복합건물의 상가공간들은 낮은 층고와 깊은 평면 구조로 인해 자연광을 실내 깊숙이 끌어들이기 어려운 단점을 지니고 있다. Sculpting Light은 이와같은 어둡고 폐쇠적인 공간을 조명중심의 인테리어 레노베이션을 통하여 밝고 개방적인 공간을 창조하였다. 천장 면과 벽면은 하얀 천 조각을 부분절개하여 들어올리는 듯 조각된 공간을 구성하고, 그 틈새로 매립된 조명빛이 새어 나오게 설계하여, 다소 무겁고 어두웠던 공간을 보다 밝고 가벼운 공간의 모습으로 변화시켰다. 또한, 미러솔과 바리솔 그리고 유리파티션과 그밖의 다양한 내장재의 물성에 대한 고민을 통해 다양한 빛을 구현하고 반사효과를 통해 그 연출과 공간감을 극대화하여 협소한 공간을 보다 확장된 모습으로 연출했다. 현재 화장품 관련 사업이 이루어지는 이 공간의 회의실 벽장은 ‘문 안의 문’이라는 컨셉으로 제품 수납공간이자 디스플레이 공간으로서의 역할을 동시에 만족시키는 다양한 기능을 품은 벽장이다. 패턴에 의해 나누어진 화이트오크 나무문을 여닫으며 수납공간으로 활용할 수 있고, 닫혀진 상태에서도 흑경의 문을 미닫으며 부분적으로 장 흑경 뒤 부분 디스플레이된 제품을 필요에 따라 진열할 수 있도록 디자인 되었다.























