Project Name: Contained Space
Location: Changwon, South Korea
Size: 1,320 sq-m
Status: Design Development (2020)
Architect: Suk Lee, Dawon Lee
Project Description:
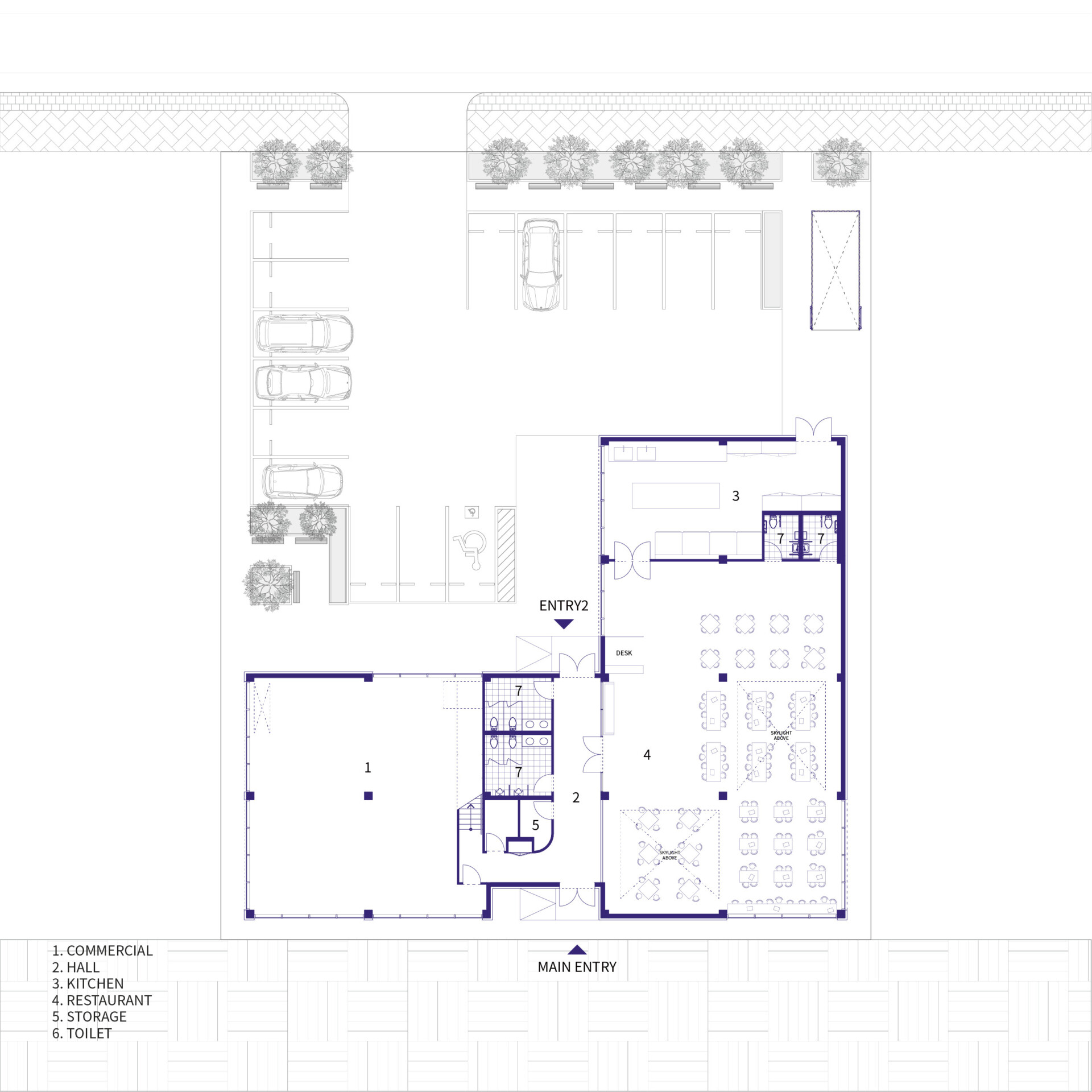
‘Busan New Port’ 라는 영문명으로 창원에 부산항 제2신항 건설이 추진되고 있다. 이미 거대한 컨테이너 부두를 앞에 두고 있는 싸이트에 들어설 건축설계는 ‘CONTAINED SPACE’라는 컨셉으로 진행이 되었다. 컨테이너를 사용한 건축사례는 다양하지만, 단편적인 적용사례가 대부분이다. 쌓아 올리는 방법을 연구하여 외관에서의 컨테이너 모습을 강조하거나, 혹은 실내인테리어에 초점을 맞춘 컨테이너홈이 대부분의 사례라 볼 수 있다.
CONTAINED SPACE는 철골 콘크리트 구조와 컨테이너 구조가 상호 조화를 이루며 설계된 공간으로, 컨테이너와 빛이 공간에 미치는 영향을 연구한 설계작품이다. 20FT 컨테이너는 1층 공간을 밝혀주는 채광정 역할을, 그리고 40FT 컨테이너는 2층공간의 층고를 높여주어 웅장한 스케일감을 더해주고 야간에는 빛을 발산하며 이 건축만의 매력을 표현한다.
인근 아파트 거주민들과 상대적으로 높은 건물들에서 CONTAINED SPACE를 내려다보는 모습 또한 설계에 고려되어, 컨테이너에서 볼 수 있는 거대한 크기의 문구와 다양한 크기의 정사각형 형태의 조합으로 랜드마크적인 요소를 더하였다.









